利達消防設備產品
利達設備技術資訊
聯系方式
- 電話:010-57113119
- 電話:13811139776
- 傳真:010-69552656
- 郵箱:506665119@qq.com
- 地址:北京通州區新華北路117
利達火災自動報警控制系統
利達LD6809E防爆隔離模塊
文章來自:利達消防設備 發布時間:2016-11-26 16:19

一、利達LD6809E模塊介紹
利達LD6809E防爆隔離器采用特殊防潮技術,抗潮濕、抗干擾能力強。人工確認火警后,手動操作防爆型手動報警按鈕,向控制器發出火警信號,同時通過LD6809E防爆隔離器,啟動消防泵。LD6809E防爆隔離器適用于石油、化工等行業具有防爆要求的場所。

二、利達LD6809E模塊功能
★ 電源線,有極性,不占地址點。
★ LD6809E防爆隔離器內置安全柵,通過安全柵與防爆區中的手動火災報警按鈕的常開無源接點連接。當按下手動火災報警按鈕的同時,通過安全柵啟動消防泵。
三、利達LD6809E模塊主要技術指標

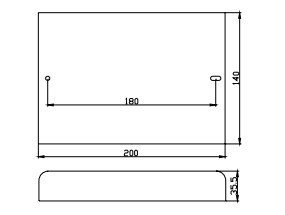
四、結構與安裝尺寸圖

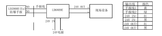
五、接線圖示例

六、安裝步驟
★ LD6809E防爆隔離器由“底殼”和“上蓋”兩部分組成。從包裝中取出后分開,取出底殼,將上蓋部分暫時保存于包裝盒中
★ 用合適的螺釘將底殼固定在墻面,然后將從底座出線孔甩出的導線按照接線方式接好。
★ 系統檢驗合格后,將上蓋與底殼用螺釘固定好。
七、布線要求:參見LD128E(M)







